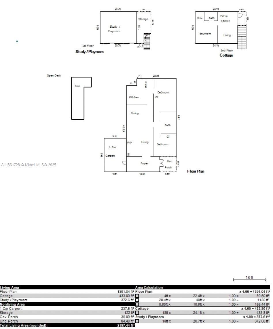
Welcome to Casa Del Sol, a charming Mediterranean Revival home in Biscayne Park. The main house features 2 bedrooms, 1 bath, a cozy living room with a working fireplace, arched windows, and timeless architectural details. A versatile two-story guest house offers an upstairs apartment and a downstairs office/studio—ideal for guests, work, or creative space. Step outside to a large pool and lush yard perfect for entertaining or relaxing under the palms. With its barrel-tile roof, stucco exterior, and classic Spanish-inspired design, this residence blends historic charm with modern comfort in one of Miami’s most desirable neighborhoods.
View Virtual TourDryer, Dishwasher, Refrigerator, Washer
Deck, Fruit Trees, Security/High Impact Doors, Lighting
 
		 
		 
		 
		The data relating to real estate on this web site comes in part from the Internet Data Exchange program of the MLS of the REALTOR® Association of Greater Miami and the Beaches, and is updated as of October 31st, 2025 at 10:24am CDT (date/time).
All information is deemed reliable but not guaranteed by the MLS and should be independently verified. All properties are subject to prior sale, change, or withdrawal. Neither listing broker(s) nor Waterfront Properties and Club Communities shall be responsible for any typographical errors, misinformation, or misprints, and shall be held totally harmless from any damages arising from reliance upon these data. © 2025 MLS of RAMB.
The information being provided is for consumers' personal, non-commercial use and may not be used for any purpose other than to identify prospective properties consumers may be interested in purchasing