1. Home
  2. Search Listings
  3. 820 Ne 111th St Biscayne Park, FL - 33161-7210
  • MLS® #: A11980418
  • 820 Ne 111th St
  • Biscayne Park, FL 33161-7210
  • $5,850,000
  • 6 Beds, 7 Bath, 4,500 SqFt
  • Residential

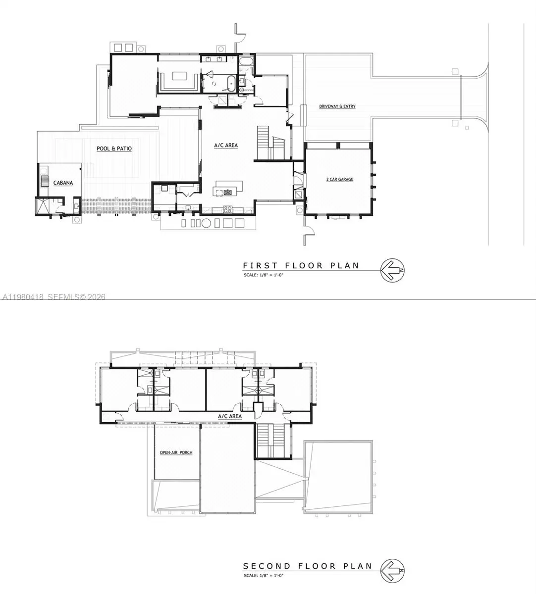
NEW ULTRA LUXURY MODERN CONSTRUCTION IN THE BLAZING BISCAYNE PARK NEIGHBORHOODS TO BE COMPLETED SUMMER 2026! Enter to an 18’ grand living space with a floating staircase soaring 26’ and framed in glass. This masterpiece that will feature 6 bdms+7 baths with 4,500 sqft under air & 8,125 sqft of total construction. An outdoor oasis also awaits with a tri-level pool+covered trellis+Bbq pavilion+gazebo w/outdoor shower+putting green. European hardwood oak floors & porcelain imported from Spain. Gourmet kitchen + adjoining galley kitchen feature Namibia White Quartz countertops, Eurodesign Italian cabinetry with German Blum self-closing hardware. Top-of-the-line kitchen appliances of client’s choosing may still be selected! Kitchen island has a dual level countertop of Quartz + wood with guest seating for effortless entertaining. Ground floor also features a formal dining room, an 18’ ceiling great room and a full primary wing. Primary w/wall of perpendicular telescopic glass doors for the ultimate tropical indoor/outdoor experience+adjoining study/office. Second floor features 4 additional bedrooms, all with en-suite baths. All bathrooms will feature Grohe fixtures, Toto smart toilets and oversized 48” x 104” porcelain. Private driveway + 2-car garage w/space for lifts in a gated 11,550 square foot landscaped lot. Home is being wired for Sonos with installed speakers & camera system throughout + automated shades and built-out closets. THIS MODERN TROPICAL OASIS AWAITS YOU!

Essential Information

  • MLS® #A11980418
  • Price$5,850,000
  • CAD Dollar$8,131,793
  • UK Pound£4,409,438
  • Euro€5,067,785
  • Bedrooms6
  • Bathrooms7.00
  • Full Baths7
  • Square Footage4,500
  • Year Built2026
  • TypeResidential
  • Sub-TypeSingle Family Residence
  • StyleTwo Story
  • StatusActive

Community Information

  • Address820 Ne 111th St
  • Area22
  • SubdivisionAMD PL GRIFFING BISCAYNE
  • CityBiscayne Park
  • CountyMiami-Dade
  • StateFL
  • Zip Code33161-7210

Amenities

  • FeaturesOther
  • ParkingDriveway
  • # of Garages2
  • ViewGarden

Interior

  • HeatingCentral
  • CoolingCentral Air
  • # of Stories2
  • StoriesTwo

Interior Features

Bedroom on Main Level, First Floor Entry, Walk-In Closet(s)

Appliances

Dryer, Dishwasher, Electric Range, Ice Maker, Microwave, Other, Refrigerator, Self Cleaning Oven, Washer

Exterior

  • Exterior FeaturesOther
  • RoofOther
  • ConstructionBlock

School Information

  • ElementaryMiami Shores
  • MiddleNorth Miami
  • Office: Luxe Living Realty
Please provide a valid email address.

820 Ne 111th St on www.ww.w.jupiteroceanfrontcondos.us

Offered at the current list price of $5,850,000, this home for sale at 820 Ne 111th St features 6 bedrooms and 7 bathrooms. This real estate listing is located in AMD PL GRIFFING BISCAYNE of Biscayne Park, FL 33161-7210 and is approximately 4,500 square feet. 820 Ne 111th St is listed under the MLS ID of A11980418 and has been on the Biscayne Park real estate market for 14 days.

Similar Listings to 820 Ne 111th St

Photo of Listing #A11980246
  • MLS® #: A11980246
  • 739 Ne 111th St
  • Biscayne Park, FL 33161-7233
  • $5,950,000
  • 6 Bed, 6 Bath, 4,530 SqFt
  • Residential
Add as Favorite

The data relating to real estate on this web site comes in part from the Internet Data Exchange program of the MLS of the REALTOR® Association of Greater Miami and the Beaches, and is updated as of March 29th, 2026 at 2:30am CDT (date/time).

All information is deemed reliable but not guaranteed by the MLS and should be independently verified. All properties are subject to prior sale, change, or withdrawal. Neither listing broker(s) nor Waterfront Properties and Club Communities shall be responsible for any typographical errors, misinformation, or misprints, and shall be held totally harmless from any damages arising from reliance upon these data. © 2026 MLS of RAMB.

The information being provided is for consumers' personal, non-commercial use and may not be used for any purpose other than to identify prospective properties consumers may be interested in purchasing