1. Home
  2. Search Listings
  3. 2275 S Ocean Boulevard #305n Palm Beach, FL - 33480
  • MLS® #: R11156520
  • 2275 S Ocean Boulevard #305n
  • Palm Beach, FL 33480
  • $2,195,000
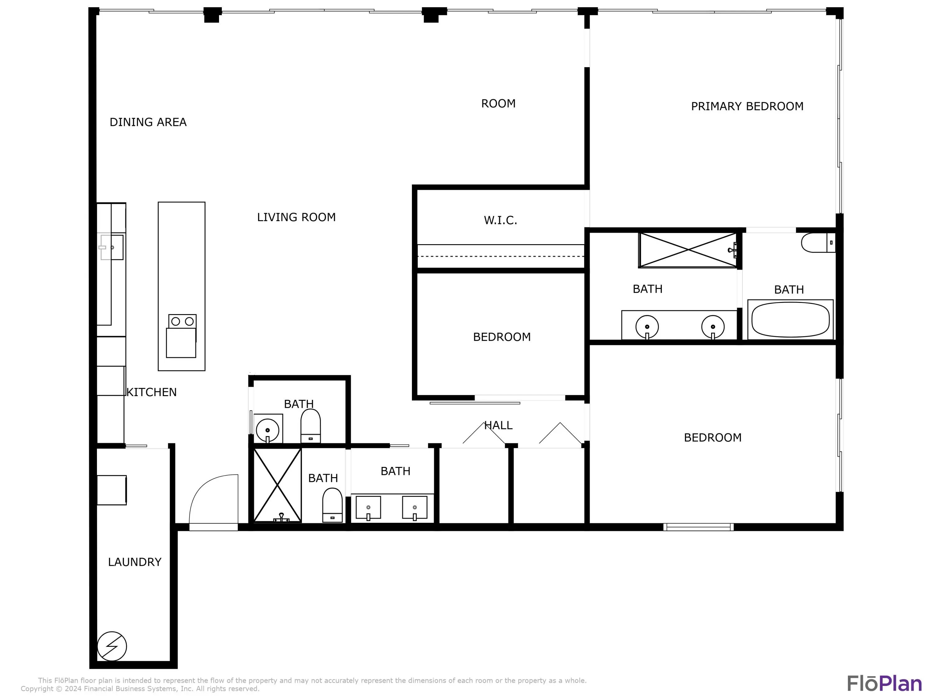
  • 2 Beds, 3 Bath, 1,868 SqFt
  • Residential

Stunning oceanfront corner unit at The Reef, a landmarked architectural jewel designed by Gene Lawrence. This completely renovated 1,868 sq/ft 2 bedroom, 2.5 bathroom plus den apartment is a modern take on coastal living with an open floor plan, polished concrete floors, volume ceilings, and uninterrupted rows of sliding impact glass doors. The kitchen features an extended white marble island and European cabinets while the sophisticated master bath features a stainless steel Japanese soaking tub. Beautifully situated on the top floor, this corner condominium has an expansive 700 sq/ft wraparound balcony offering sweeping views of the Atlantic Ocean and the tropical treetops of Phipps Ocean Park by day and sunsets over the Intracoastal Waterway each night. Private poolside cabana included The Reef has a beautiful pool deck and lawn with gated access to a pristine sandy beach. Poolside cabana with full bath and kitchenette. The award-winning Palm Beach Par 3 Golf Course and Phipps Ocean Park Tennis Center are both steps away. Adjacent to a lake trail perfect for walks, jogs, and bike rides, this chic pet-friendly building offers a modern, well-equipped gym, steam room, garage parking, doorman, and professional on-site manager.

Essential Information

  • MLS® #R11156520
  • Price$2,195,000
  • CAD Dollar$3,014,064
  • UK Pound£1,645,550
  • Euro€1,896,919
  • HOA Fees3231
  • Bedrooms2
  • Bathrooms3.00
  • Full Baths2
  • Half Baths1
  • Square Footage1,868
  • Year Built1974
  • TypeResidential
  • Sub-TypeCondominium
  • Unit Floor3
  • StatusActive
  • HOPANo Hopa

Restrictions

Buyer Approval Required, Lease Restrictions

Community Information

  • Address2275 S Ocean Boulevard #305n
  • Area5004
  • SubdivisionREEF CONDO
  • DevelopmentThe Reef
  • CityPalm Beach
  • CountyPalm Beach
  • StateFL
  • Zip Code33480

Amenities

  • # of Garages1
  • ViewGarden, Intracoastal, Ocean
  • Is WaterfrontYes
  • WaterfrontOcean Access, Ocean Front

Amenities

Fitness Center, Picnic Area, Pool, Sauna, Storage, Manager On Site, Trash Chute, Bike Storage, Community Room

Utilities

Cable Available, Sewer Available, Water Available

Parking

Assigned, Garage Door Opener, Guest, Under Building, Garage

Pets Allowed

Yes, Number Limit, Size Limit, Pet Restrictions Possible

Interior

  • # of Stories3
  • StoriesMulti/Split

Interior Features

Entrance Foyer, Walk-In Closet(s), Bedroom Layout - Split, Closet Cabinetry, Storage

Appliances

Electric Water Heater, Water Softener Owned, Cooktop, Dryer, Disposal, Dishwasher, Electric Range, Free-Standing Freezer, Ice Maker, Refrigerator, Water Heater, Washer

Heating

Central, Electric, Central Building

Cooling

Central Air, Electric, Central Building

Exterior

  • Exterior FeaturesBalcony
  • Lot DescriptionSidewalks
  • RoofTar/Gravel
  • ConstructionConcrete, Stucco, CBS

School Information

  • ElementaryPalm Beach Public
  • HighForest Hill
  • Office: Acquire Palm Beach Llc

Property Location

Please provide a valid email address.

2275 S Ocean Boulevard #305n on www.ww.w.jupiteroceanfrontcondos.us

Offered at the current list price of $2,195,000, this home for sale at 2275 S Ocean Boulevard #305n features 2 bedrooms and 3 bathrooms. This real estate listing is located in REEF CONDO of Palm Beach, FL 33480 and is approximately 1,868 square feet. 2275 S Ocean Boulevard #305n is listed under the MLS ID of R11156520 and has been available through www.ww.w.jupiteroceanfrontcondos.us for the Palm Beach real estate market for 59 days.

Facts About Palm Beach, FL

If you are looking for fine french-styled cuisine visit Cafe L'Europe. It is a staple of the Palm Beach culinary scene and has been for over 25 years.

The Breakers Resort, one of the worlds most famous and opulent resorts is located in Palm Beach.

Palm Beach's local newspaper is the Palm Beach Post which covers news and information from Jupiter Florida to Boca Raton.

Similar Listings to 2275 S Ocean Boulevard #305n

Photo of Listing #R11146117
  • MLS® #: R11146117
  • 2660 S Ocean Boulevard #105s
  • Palm Beach, FL 33480
  • $1,985,000
  • 2 Bed, 2 Bath, 1,900 SqFt
  • Residential
Add as Favorite
Photo of Listing #R11128375
  • MLS® #: R11128375
  • 369 S Lake Drive #2b
  • Palm Beach, FL 33480
  • $1,995,000
  • 1 Bed, 2 Bath, 1,032 SqFt
  • Residential
Add as Favorite
Photo of Listing #R11138108
  • MLS® #: R11138108
  • 300 S Ocean Boulevard #4f
  • Palm Beach, FL 33480
  • $2,385,000
  • 2 Bed, 2 Bath, 1,274 SqFt
  • Residential
Add as Favorite
Photo of Listing #R11131023
  • MLS® #: R11131023
  • 2784 S Ocean Boulevard #403s
  • Palm Beach, FL 33480
  • $2,250,000
  • 2 Bed, 2 Bath, 1,689 SqFt
  • Residential
Add as Favorite

All listings featuring the BMLS logo are provided by Beaches MLS Inc. Copyright 2026 Beaches MLS. This information is not verified for authenticity or accuracy and is not guaranteed.
© 2026 Beaches Multiple Listing Service, Inc. All rights reserved.

Listing information last updated on March 21st, 2026 at 5:33pm CDT.