1. Home
  2. Search Listings
  3. 100 N Ocean Boulevard #105 Delray Beach, FL - 33483
  • MLS® #: RX-11121541
  • 100 N Ocean Boulevard #105
  • Delray Beach, FL 33483
  • $775,000
  • 2 Beds, 2 Bath, 1,028 SqFt
  • Residential

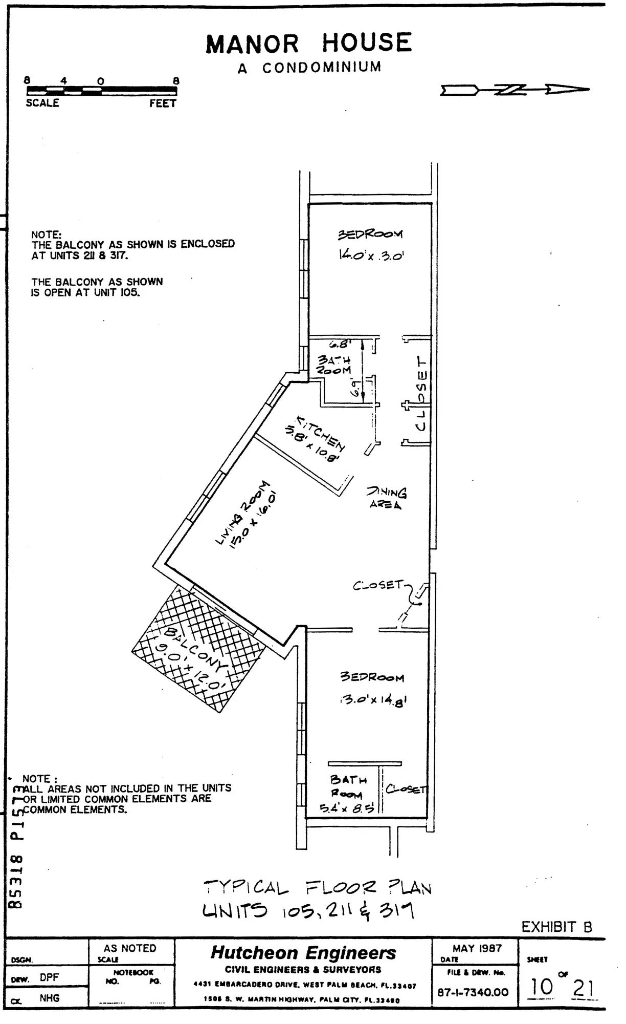
**LOCATION-LOCATION-LOCATION** !!DELRAY BEACH!! Rare opportunity to live directly across from the Ocean and only steps away from the Beach / Atlantic Ave! This 2 Bedroom condo unit in the ''Manor House'' has a split floor plan, 2 full baths, a peaceful balcony and Impact Windows! The building has a private pool, grilling area and a community gather room. No Assessments and Strong Reserve Account.

View Virtual Tour

Essential Information

  • MLS® #RX-11121541
  • Price$775,000
  • CAD Dollar$1,092,197
  • UK Pound£592,204
  • Euro€671,789
  • HOA Fees1503.44
  • Bedrooms2
  • Bathrooms2.00
  • Full Baths2
  • Square Footage1,028
  • Year Built1957
  • TypeResidential
  • Sub-TypeCondo or Coop
  • RestrictionsBuyer Approval, No Lease
  • Style4+ Floors
  • Unit Floor2
  • StatusActive
  • HOPANo Hopa

Community Information

  • Address100 N Ocean Boulevard #105
  • Area4140
  • SubdivisionManor House
  • DevelopmentManor House
  • CityDelray Beach
  • CountyPalm Beach
  • StateFL
  • Zip Code33483

Amenities

  • Utilities3-Phase Electric, Public Water
  • Parking Spaces1
  • ParkingAssigned, Covered
  • ViewOcean, Other
  • WaterfrontNone
  • Pets AllowedNo

Amenities

Bike Storage, Common Laundry, Community Room, Elevator, Lobby, Manager on Site, Pool

Interior

  • HeatingCentral Individual, Electric
  • CoolingElectric, Wall-Win A/C
  • # of Stories5
  • Stories5.00

Interior Features

Built-in Shelves, Walk-in Closet

Appliances

Dishwasher, Disposal, Range - Electric, Refrigerator, Smoke Detector

Exterior

  • Exterior FeaturesCovered Balcony
  • RoofOther
  • ConstructionCBS

Windows

Impact Glass, Plantation Shutters

School Information

  • ElementaryPlumosa School of the Arts
  • MiddleCarver Community Middle School
  • HighAtlantic High School
  • Office: Signature Int'l Premier Properties

Property Location

Please provide a valid email address.

100 N Ocean Boulevard #105 on www.ww.w.jupiteroceanfrontcondos.us

Offered at the current list price of $775,000, this home for sale at 100 N Ocean Boulevard #105 features 2 bedrooms and 2 bathrooms. This real estate listing is located in Manor House of Delray Beach, FL 33483 and is approximately 1,028 square feet. 100 N Ocean Boulevard #105 is listed under the MLS ID of RX-11121541 and has been available through www.ww.w.jupiteroceanfrontcondos.us for the Delray Beach real estate market for 77 days.

Similar Listings to 100 N Ocean Boulevard #105

Photo of Listing #RX-11104366
  • MLS® #: RX-11104366
  • 100 N Ocean Blvd #211
  • Delray Beach, FL 33483
  • $779,000
  • 2 Bed, 2 Bath, 1,028 SqFt
  • Residential
Add as Favorite
Photo of Listing #RX-11027558
  • MLS® #: RX-11027558
  • 2200 S Ocean Boulevard #707
  • Delray Beach, FL 33483
  • $749,900
  • 2 Bed, 2 Bath, 1,482 SqFt
  • Residential
Add as Favorite
Photo of Listing #RX-11072698
  • MLS® #: RX-11072698
  • 240 Captains Walk #517
  • Delray Beach, FL 33483
  • $749,000
  • 2 Bed, 3 Bath, 1,512 SqFt
  • Residential
Add as Favorite
Photo of Listing #RX-11075772
  • MLS® #: RX-11075772
  • 2200 S Ocean Boulevard #401
  • Delray Beach, FL 33483
  • $849,000
  • 2 Bed, 2 Bath, 1,482 SqFt
  • Residential
Add as Favorite

All listings featuring the BMLS logo are provided by Beaches MLS Inc. Copyright 2025 Beaches MLS. This information is not verified for authenticity or accuracy and is not guaranteed.
© 2025 Beaches Multiple Listing Service, Inc. All rights reserved.

Listing information last updated on November 21st, 2025 at 8:50am CST.