1. Home
  2. Search Listings
  3. 2401 Amherst Court Boynton Beach, FL - 33436
  • MLS® #: RX-11134030
  • 2401 Amherst Court
  • Boynton Beach, FL 33436
  • $375,000
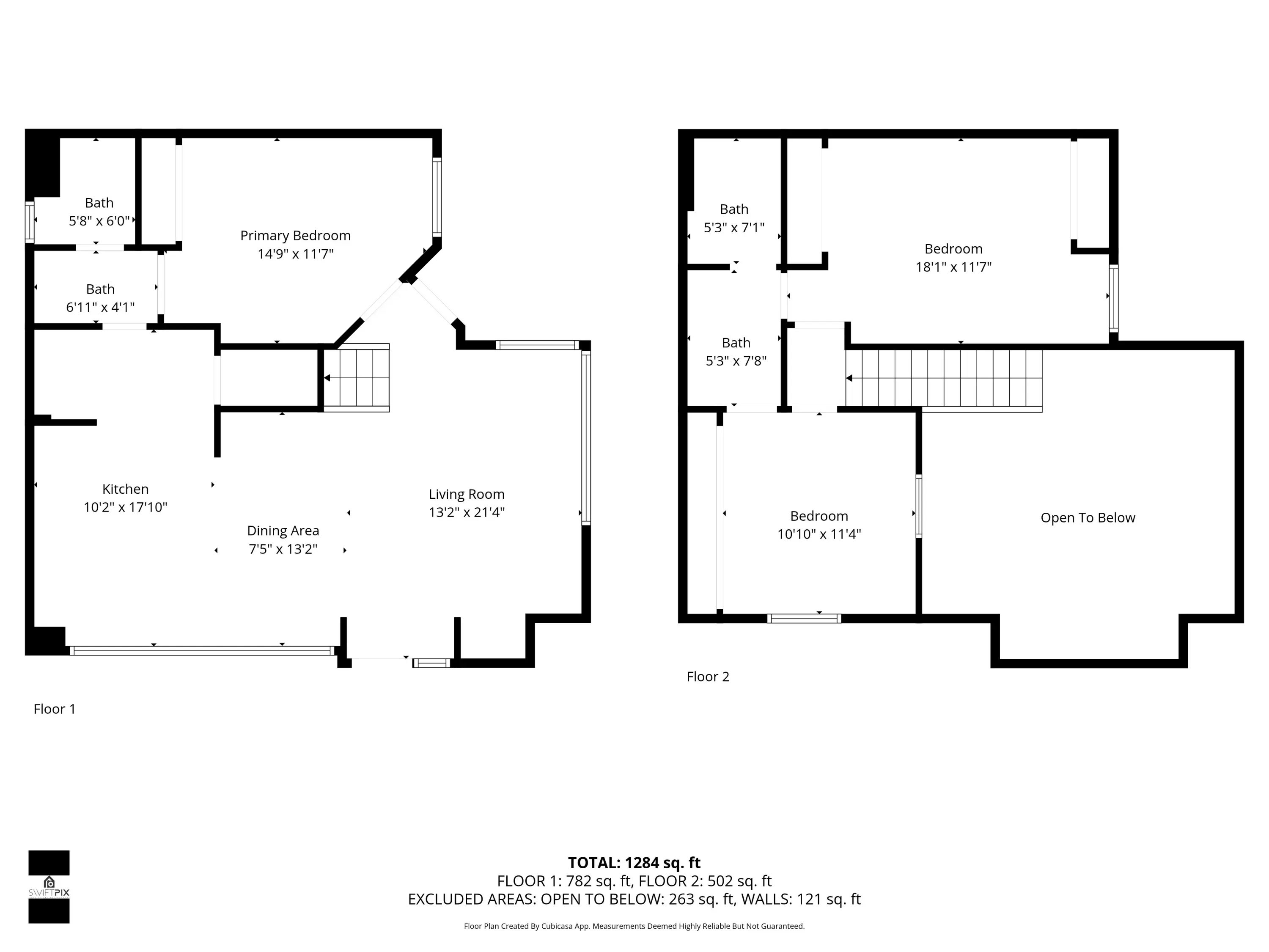
  • 3 Beds, 2 Bath, 1,284 SqFt
  • Residential

Welcome to 2401 Amherst Ct, a charming townhouse nestled in the heart of Boynton Beach. This inviting home offers a spacious 1,280 square feet of living space, featuring 3 bedrooms and 2 well-appointed bathrooms with the primary bedroom suite located on the ground floor. As you step inside, you'll be greeted by a beautifully designed open kitchen, complete with stainless steel appliances including a dishwasher, electric oven and stove. The spacious, windowed kitchen provides gorgeous natural light, perfectly complementing the beautiful quartz countertops and sleek tile flooring throughout the home. The living area boasts lots of natural light, ensuring a bright and welcoming atmosphere year-round. The home also conveniently offers an in-unit washer and dryer.

View Virtual Tour

Essential Information

  • MLS® #RX-11134030
  • Price$375,000
  • CAD Dollar$506,993
  • UK Pound£274,420
  • Euro€314,823
  • HOA Fees542
  • Bedrooms3
  • Bathrooms2.00
  • Full Baths2
  • Square Footage1,284
  • Year Built1988
  • TypeResidential
  • Sub-TypeTownhouse
  • StatusActive
  • HOPANo Hopa

Restrictions

Buyer Approval, No Lease First 2 Years

Community Information

  • Address2401 Amherst Court
  • Area5710
  • SubdivisionWELLESLEY AT BOYNTON
  • CityBoynton Beach
  • CountyPalm Beach
  • StateFL
  • Zip Code33436

Amenities

  • UtilitiesPublic Sewer, Public Water
  • WaterfrontLake
  • Pets AllowedYes

Amenities

Bike - Jog, Clubhouse, Pickleball, Playground, Pool, Tennis

Interior

  • HeatingCentral, Electric
  • CoolingCentral, Electric
  • # of Stories2
  • Stories2.00

Interior Features

Entry Lvl Lvng Area, Split Bedroom

Appliances

Dishwasher, Disposal, Dryer, Freezer, Ice Maker, Microwave, Refrigerator, Smoke Detector, Water Heater - Elec

Exterior

  • Exterior FeaturesShutters
  • ConstructionCBS, Stucco

School Information

  • MiddleTradewinds Middle School
  • HighSantaluces Community High

Elementary

Freedom Shores Elementary School

  • Office: Compass Florida Llc

Property Location

Please provide a valid email address.

2401 Amherst Court on www.ww.w.jupiteroceanfrontcondos.us

Offered at the current list price of $375,000, this home for sale at 2401 Amherst Court features 3 bedrooms and 2 bathrooms. This real estate listing is located in WELLESLEY AT BOYNTON of Boynton Beach, FL 33436 and is approximately 1,284 square feet. 2401 Amherst Court is listed under the MLS ID of RX-11134030 and has been available through www.ww.w.jupiteroceanfrontcondos.us for the Boynton Beach real estate market for 113 days.

Similar Listings to 2401 Amherst Court

Photo of Listing #RX-11152916
  • MLS® #: RX-11152916
  • 3002 Hayden Court
  • Boynton Beach, FL 33436
  • $360,000
  • 2 Bed, 3 Bath, 1,374 SqFt
  • Residential
Add as Favorite
Photo of Listing #A11835125
  • MLS® #: A11835125
  • 304 Andover Ct
  • Boynton Beach, FL 33436-9022
  • $380,000
  • 3 Bed, 2 Bath, 1,272 SqFt
  • Residential
Add as Favorite
Photo of Listing #RX-11107094
  • MLS® #: RX-11107094
  • 203 Andover Court #2c
  • Boynton Beach, FL 33436
  • $389,900
  • 3 Bed, 2 Bath, 1,272 SqFt
  • Residential
Add as Favorite
Photo of Listing #RX-11153294
  • MLS® #: RX-11153294
  • 1003 Copley Court
  • Boynton Beach, FL 33436
  • $396,000
  • 3 Bed, 2 Bath, 1,272 SqFt
  • Residential
Add as Favorite

All listings featuring the BMLS logo are provided by Beaches MLS Inc. Copyright 2026 Beaches MLS. This information is not verified for authenticity or accuracy and is not guaranteed.
© 2026 Beaches Multiple Listing Service, Inc. All rights reserved.

Listing information last updated on February 11th, 2026 at 7:51pm CST.