1. Home
  2. Search Listings
  3. 2860 S Seacrest Boulevard Boynton Beach, FL - 33435
  • MLS® #: RX-11145660
  • 2860 S Seacrest Boulevard
  • Boynton Beach, FL 33435
  • $1,500,000
  • 0.96 Acres
  • Business

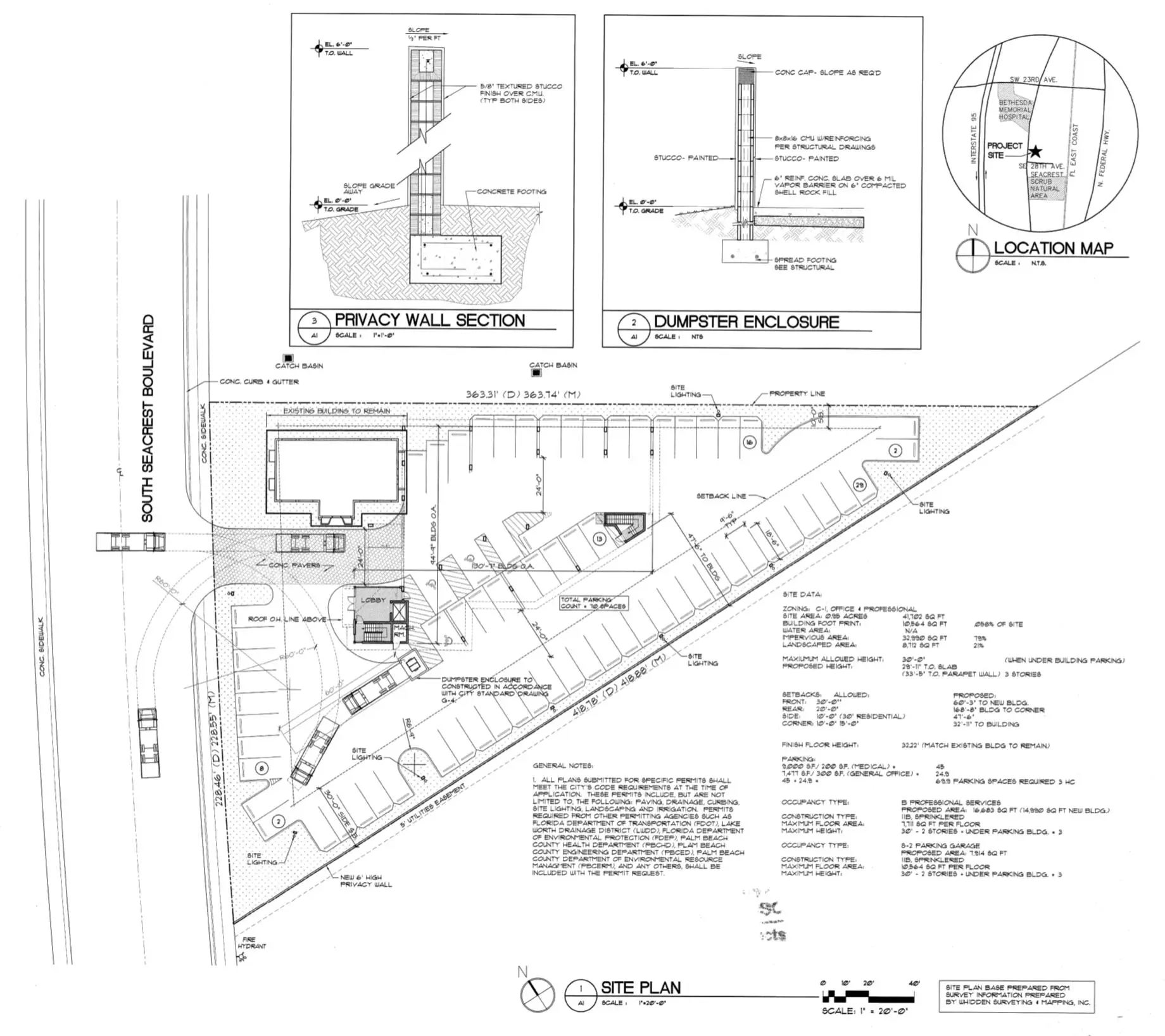
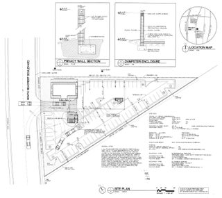
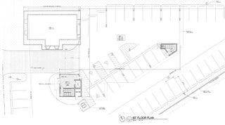
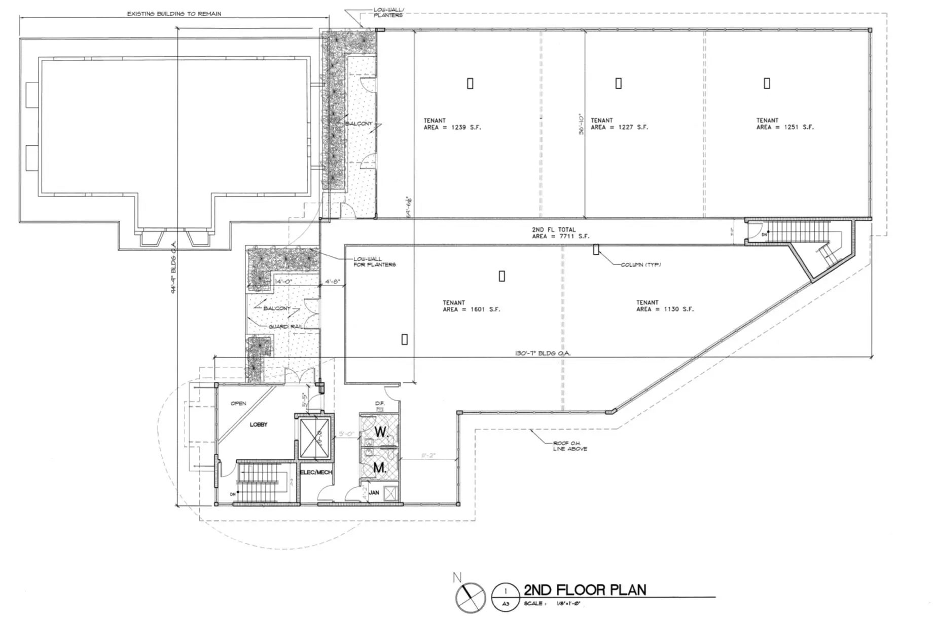
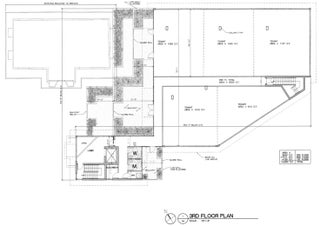
Gator Commercial Real Estate is pleased to present for sale 2860 S Seacrest Boulevard - Unit B, a vacant development site located within the Seacrest Green Professional Condominium in Boynton Beach, Florida.The property is positioned along the well-established Seacrest medical corridor, across street from Bethesda Hospital East, surrounded by a critical mass of healthcare, wellness, and professional users.Architectural renderings and conceptual plans envision a three-story, +/-15,000 square foot medical office building designed to complement the surrounding professional campus. The design proposes a first-floor lobby and parking interface, 7,711 SF on the second floor, and 6,550 SF on the third floor with balconies and architectural features enhancing visibility and tenant appeal.

View Virtual Tour

Essential Information

  • MLS® #RX-11145660
  • Price$1,500,000
  • CAD Dollar$2,054,588
  • UK Pound£1,111,857
  • Euro€1,272,104
  • Acres0.96
  • TypeBusiness
  • Sub-TypeIncome, Professional Office
  • StyleNot Improved
  • StatusActive

Community Information

  • Address2860 S Seacrest Boulevard
  • Area4340
  • CityBoynton Beach
  • CountyPalm Beach
  • StateFL
  • Zip Code33435

Amenities

  • UtilitiesOther

Interior

  • AppliancesLand Only
  • HeatingOther
  • CoolingOther

Exterior

  • Lot DescriptionVacant land
  • RoofOther
  • Office: Gator Commercial Real Estate Llc

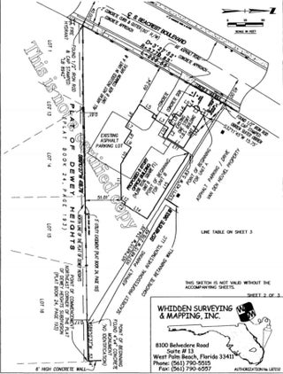
Property Location

Please provide a valid email address.

2860 S Seacrest Boulevard on www.ww.w.jupiteroceanfrontcondos.us

Offered at the current list price of $1,500,000, this home for sale at 2860 S Seacrest Boulevard features bedrooms and 0 bathrooms. This real estate listing is located in of Boynton Beach, FL 33435 . 2860 S Seacrest Boulevard is listed under the MLS ID of RX-11145660 and has been available through www.ww.w.jupiteroceanfrontcondos.us for the Boynton Beach real estate market for 76 days.

All listings featuring the BMLS logo are provided by Beaches MLS Inc. Copyright 2026 Beaches MLS. This information is not verified for authenticity or accuracy and is not guaranteed.
© 2026 Beaches Multiple Listing Service, Inc. All rights reserved.

Listing information last updated on February 19th, 2026 at 7:02pm CST.