1. Home
  2. Search Listings
  3. 11 Meadows Drive Boynton Beach, FL - 33436
  • MLS® #: RX-11151384
  • 11 Meadows Drive
  • Boynton Beach, FL 33436
  • $290,000
  • 2 Beds, 2 Bath, 1,263 SqFt
  • Residential

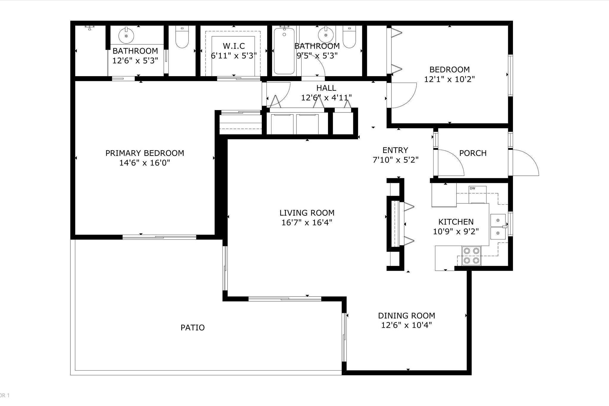
Discover this charming 2-bedroom, 2-bath villa ideally situated in the vibrant Willowbrook community. Formerly one of the model homes, this well-cared-for residence offers both comfort and style, featuring a private yard and close proximity to the community pool. Inside, you'll find a bright and inviting layout with spacious walk-in closets in both bedrooms, convenient pull-down attic stairs providing additional storage, and a newly installed roof that adds lasting value. The expansive courtyard patio is perfect for outdoor relaxation or entertaining guests. Surrounded by lush landscaping and peaceful walkways, Willowbrook offers a refreshing pool and added peace of mind with community-installed security cameras at the front of the neighborhood.Conveniently located near popular restaurants, shopping, and the beautiful South Florida beaches, this villa is ideal as a primary residence or a part-time getaway. Don't miss the opportunity to own a piece of paradise in one of Boynton Beach's most desirable communities.

View Virtual Tour

Essential Information

  • MLS® #RX-11151384
  • Price$290,000
  • CAD Dollar$392,086
  • UK Pound£210,056
  • Euro€242,555
  • HOA Fees465.00
  • Bedrooms2
  • Bathrooms2.00
  • Full Baths2
  • Square Footage1,263
  • Year Built1984
  • TypeResidential
  • Sub-TypeTownhouse / Villa / Row
  • StyleTownhouse, Villa
  • StatusActive
  • HOPANo Hopa

Restrictions

Buyer Approval, Lease OK w/Restrict, No Lease 1st Year, Tenant Approval

Community Information

  • Address11 Meadows Drive
  • Area4490
  • SubdivisionMEADOWS 300 1
  • CityBoynton Beach
  • CountyPalm Beach
  • StateFL
  • Zip Code33436

Amenities

  • Parking2+ Spaces, Assigned, Guest
  • ViewGarden
  • WaterfrontNone
  • Pets AllowedRestricted

Amenities

Playground, Pool, Sidewalks, Street Lights, Tennis

Utilities

Cable, 3-Phase Electric, Public Sewer, Public Water

Interior

  • HeatingCentral, Electric
  • CoolingCentral, Electric
  • # of Stories1
  • Stories1.00

Interior Features

Built-in Shelves, Ctdrl/Vault Ceilings, Entry Lvl Lvng Area, Pantry, Volume Ceiling, Walk-in Closet

Appliances

Dishwasher, Dryer, Range - Electric, Refrigerator, Storm Shutters, Washer, Washer/Dryer Hookup, Water Heater - Elec

Exterior

  • Exterior FeaturesFence, Open Patio, Shutters
  • WindowsBlinds, Drapes, Sliding
  • RoofComp Shingle
  • ConstructionBlock

Lot Description

< 1/4 Acre, Corner Lot, Paved Road, Public Road, Sidewalks, Treed Lot

School Information

  • MiddleTradewinds Middle School
  • HighSantaluces Community High
  • Office: Redfin Corporation

Property Location

Please provide a valid email address.

11 Meadows Drive on www.ww.w.jupiteroceanfrontcondos.us

Offered at the current list price of $290,000, this home for sale at 11 Meadows Drive features 2 bedrooms and 2 bathrooms. This real estate listing is located in MEADOWS 300 1 of Boynton Beach, FL 33436 and is approximately 1,263 square feet. 11 Meadows Drive is listed under the MLS ID of RX-11151384 and has been available through www.ww.w.jupiteroceanfrontcondos.us for the Boynton Beach real estate market for 24 days.

Similar Listings to 11 Meadows Drive

Photo of Listing #RX-11028033
  • MLS® #: RX-11028033
  • 172 Meadows Drive
  • Boynton Beach, FL 33436
  • $290,000
  • 2 Bed, 2 Bath, 1,380 SqFt
  • Residential
Add as Favorite
Photo of Listing #RX-11078736
  • MLS® #: RX-11078736
  • 9975 Ligustrum Tree Way #b
  • Boynton Beach, FL 33436
  • $298,000
  • 2 Bed, 2 Bath, 1,404 SqFt
  • Residential
Add as Favorite
Photo of Listing #RX-11097525
  • MLS® #: RX-11097525
  • 8912 Thumbwood Circle #c
  • Boynton Beach, FL 33436
  • $299,000
  • 2 Bed, 2 Bath, 1,350 SqFt
  • Residential
Add as Favorite
Photo of Listing #RX-11097713
  • MLS® #: RX-11097713
  • 3815 Lace Vine Lane
  • Boynton Beach, FL 33436
  • $289,900
  • 2 Bed, 2 Bath, 1,316 SqFt
  • Residential
Add as Favorite

All listings featuring the BMLS logo are provided by Beaches MLS Inc. Copyright 2026 Beaches MLS. This information is not verified for authenticity or accuracy and is not guaranteed.
© 2026 Beaches Multiple Listing Service, Inc. All rights reserved.

Listing information last updated on January 29th, 2026 at 7:04pm CST.